Проекти
КД "Сходи в приватному будинку в класичному стилі"
Цікавий проект з ретельно продуманим дизайном, точними пропорціями та відповідністю стандартам. Спеціалісти конструкторського бюро "Alamanija" розробили робочі креслення для виготовлення сталевого каркасу для цих сходів. Звісно, важливою частиною роботи проектування було створення пакету робочої документації для дерев'яної частини сходів. Ми пропонуємо ознайомитися з частиною документів, які ми підготували для цього проекту.
КД "Сталевий каркас для сходів в сучасному стилі"
Створення конструкторської документації для металевого каркасу - це ключовий етап, який потребує детального проектування та уважної розробки. Цей процес вимагає високого рівня уваги до деталей, професіоналізму та точності, щоб гарантувати успішне виготовлення та монтаж металевого каркасу для сучасних сходів. Металевий каркас для сходів з трьома площадками в сучасному стилі - це результат ефективного поєднання міцності і сучасного дизайну. Ця конструкція славиться своєю надійністю, що робить її ідеальним вибором для сучасних інтер'єрів. Кожна деталь була уважно розроблена, забезпечуючи високу якість та ефективність. З цим металевим каркасом ваші сходи стануть не лише функціональною складовою, але й важливим архітектурним акцентом вашого простору.
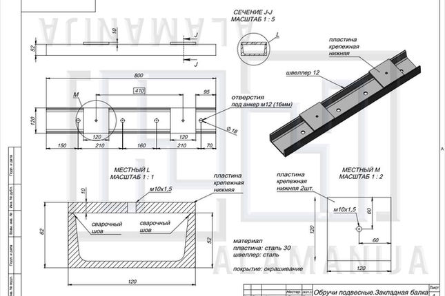
КД "Кроквяна система"
КД "Кухня в стилі арт-деко"
Ця кухня в стилі арт-деко є результатом нашого проектування та уважного планування. Вона вражає зеленим відтінком, який надає приміщенню свіжості та життєвості. Золоті акценти додають вишуканості і розкіші, створюючи гармонійний контраст зелені. Особливим акцентом є скляна вітрина для посуду, яка не лише дозволяє вам продемонструвати вашу колекцію, але й додає структури та глибини інтер'єру. Важливо зазначити, що ця кухня без верхнього ярусу, що створює відчуття простору та легкості. Вона ідеально поєднує в собі стиль, функціональність та вишуканість, створюючи привабливий і комфортний простір для приготування їжі та сімейних обідів.
КД "Проект навісу"
КД "Яскрава сучасна кухня"
Під час роботи над даним проектом кухні спеціалісти конструкторського бюро «Alamanija» вклали всю увагу на максимальний комфорт та зручність. Багато шухляд і шафок забезпечують вам достатньо місця для зберігання всіх кулінарних інструментів та продуктів. Особливою родзинкою цієї кухні є верхній ярус з фарбованими рель'єфними фасадами. Вони додають кухні обсягу та вишуканості, роблячи її особливою. В результаті ми створили кухню, яка не лише служить практичним місцем для приготування страв, але й вражає своєю елегантністю та стилем, створюючи неповторний простір для вашого кулінарного мистецтва та сімейних обідів. Велика площа кухні робить її ідеальним місцем для приготування та сімейних обідів.









































































